HAUS UNTER BÄUMEN
Bildtitel
Untertitel hier einfügenButton
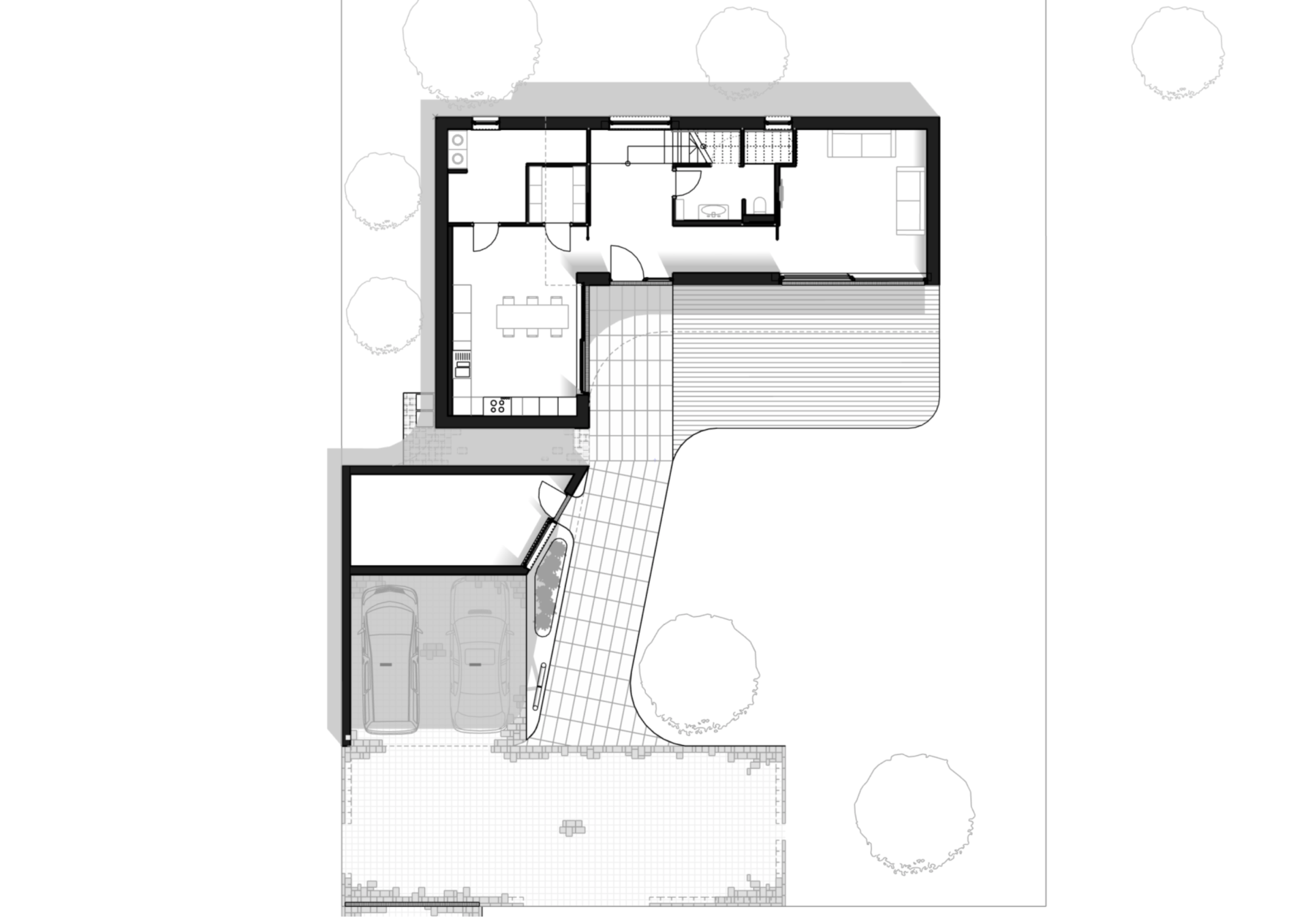
MAXIMALE PRIVATSPHÄRE IN DICHT BEBAUTER UMGEBUNG
Präzise durchdachtes Einfamilienhaus mit besonderen Anforderungen im Bezug auf Privatheit und Schallschutz. Durch die hofartige Form werden trotz Lage im dicht bebauten Gebiet und Nähe zur S-Bahn (nordseitig) sowohl im Innen- als auch im Außenraum Bereiche mit ruhiger und geschützter Atmosphäre geschaffen.
Bausumme: ca. 500.000€
Baubeginn 2020
HAUS UNTER BÄUMEN
Bildtitel
Untertitel hier einfügenButton
Bildtitel
Untertitel hier einfügenButtonBildtitel
Untertitel hier einfügenButton
Bildtitel
Untertitel hier einfügenButtonBildtitel
Untertitel hier einfügenButtonBildtitel
Untertitel hier einfügenButton
MAXIMALE PRIVATSPHÄRE IN DICHT BEBAUTER UMGEBUNG
Präzise durchdachtes Einfamilienhaus mit besonderen Anforderungen im Bezug auf Privatheit und Schallschutz. Durch die hofartige Form werden trotz Lage im dicht bebauten Gebiet und Nähe zur S-Bahn (nordseitig) sowohl im Innen- als auch im Außenraum Bereiche mit ruhiger und geschützter Atmosphäre geschaffen.
Bausumme: ca. 500.000€
Baubeginn 2020



